Conquerors Building

Type: Implemented Office

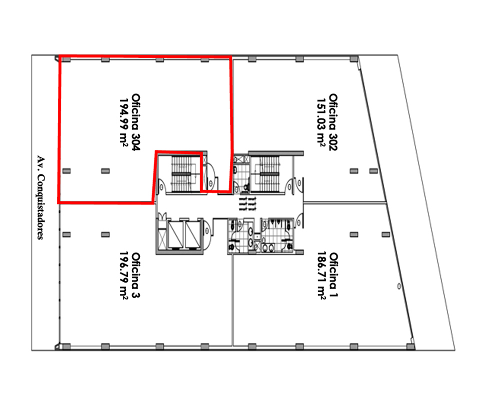
Área: Desde 212.57 m² y 348.10 m²

Piso: 3 y 4

District: San Isidro

Edificio corporativo en la mejor zona de San Isidro.

Characteristics:

  • Lobby
  • Large equipped dining room.
  • Amplia terraza
  • Mezzanine
  • 03 directorios
  • Estacionamientos para bicicletas en el primer sótano.
  • 130 estacionamientos y 16 estacionamientos para visita.
  • Duchas

 

 

New properties